Semi-Automatic Gluer
|
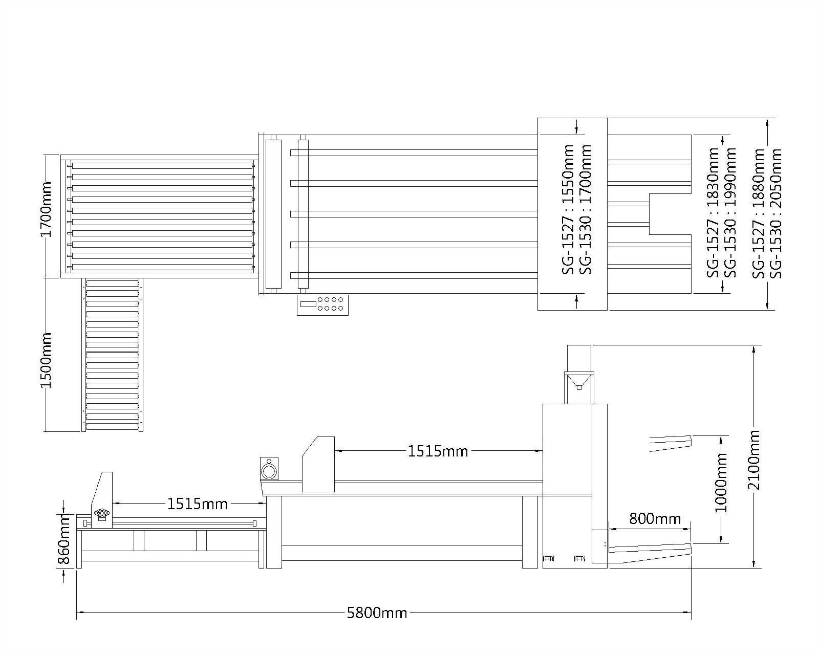
● Can control the box size to easy operation and labor-saving. ● Squaring jogger after gluing, that be sure to make out the correct boxes without distortion while fault scorer. ● Feed table auto-rises by sensor to keep stack of paperboard on operation line. ● Motorized adjustment for stop-table due to box size. ● As this machine is combined with the counter ejector that quantity of bundle can be pre-set, you operating efficiency is all the better. |
|
|
|
General Specifications
|
|||||||||||||||||||||||||||
Layout


